Back to Gallery

Residence

£149175
Area
2021
Budget
Completed
Year
Project details
Status

Project details

I worked as an architect on a residential project for a family of three in a suburban neighborhood. Our goal was to create a modern and aesthetically pleasing home that was functional as well. The interiors were mostly made of teak wood, chosen by me based on the family's preferences for warm, beige tones. From the initial conceptual stage to the final completion of the project, I was involved with the client. We incorporated false ceilings into the design to meet the customer's request. Overall, the finished product was a beautiful and rich modern home that met the needs and desires of the family.

My contributions have been instrumental in shaping the overall vision and design of the project. I oversaw every aspect of architecture, construction administration, through furnishing and styling.

  • Designed using AutoCAD
  • Designed using Revit
  • Designed using SketchUp
  • Designed using Lumion
  • Designed using Photoshop

Interior Design

Interior Design Image 1
Interior Design Image 2
Interior Design Image 3
Interior Design Image 4
Interior Design Image 5
Interior Design Image 6
Interior Design Image 7
Interior Design Image 8
Interior Design Image 9
Interior Design Image 10

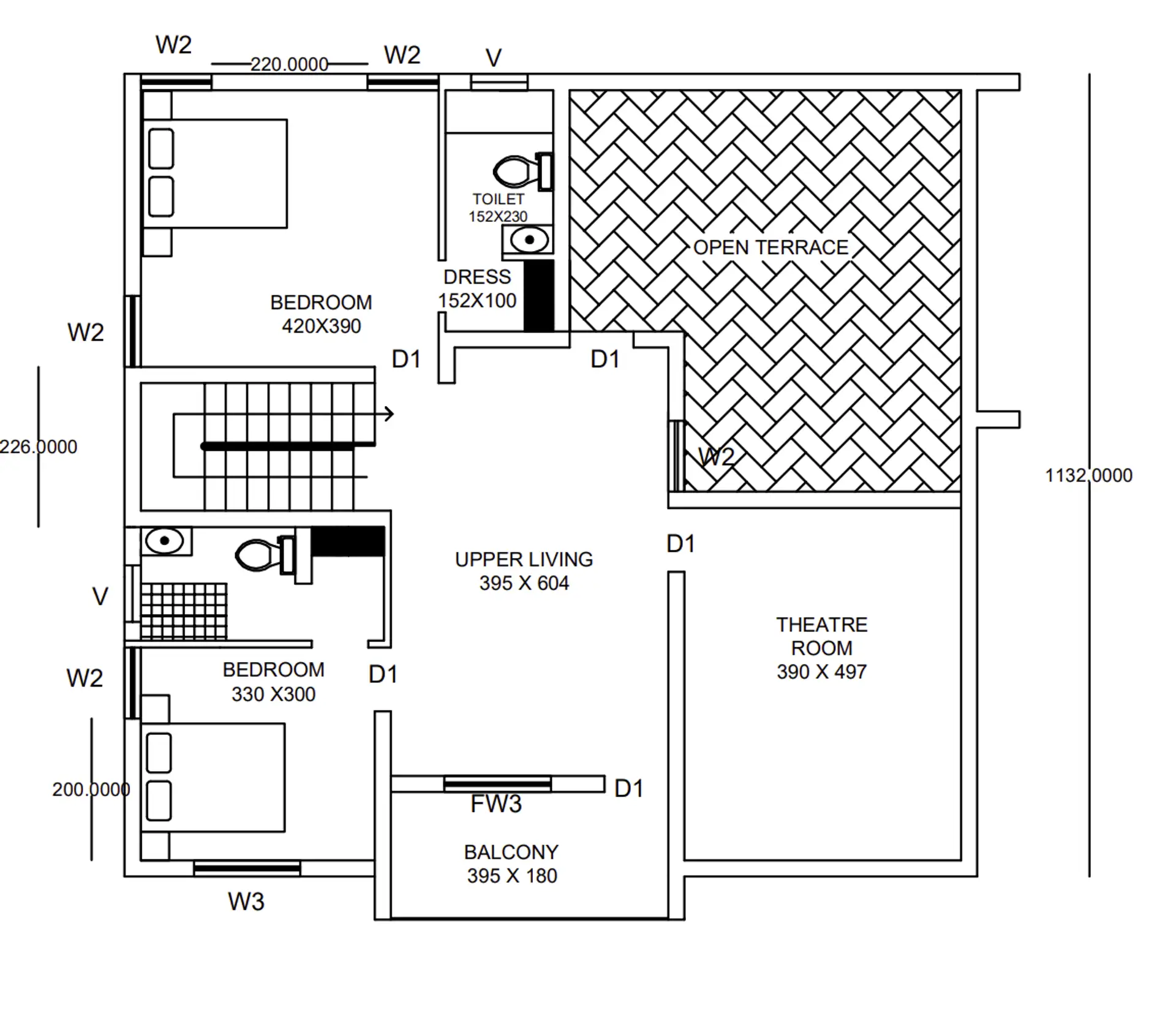
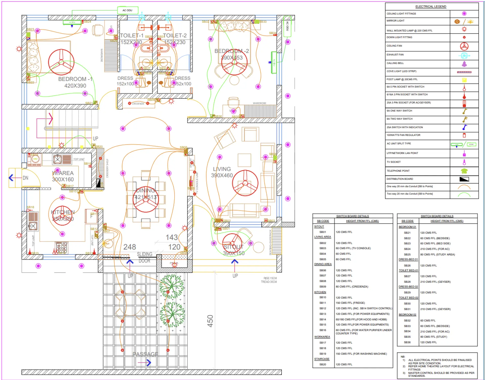
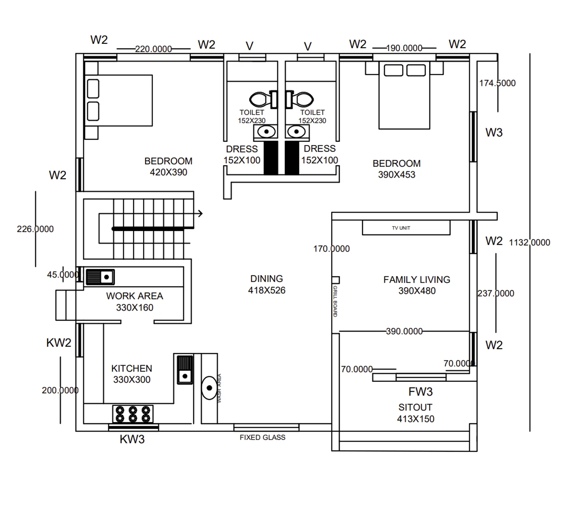
Floor Plans

Floor Plan 1Level 0
Floor Plan 2Level 1
Floor Plan 3Level 2
Floor Plan 4Level 3

Results

The project was a huge success. It was finished on schedule and the client expressed satisfaction with the outcome. The design plan was implemented skillfully, resulting in a space that surpassed all expectations. The team was also able to complete construction under the architect's guidance.